Obras
Avanza el proyecto del nuevo edificio para el Juzgado de Paz en Libertador San Martín
:format(webp):quality(40)/https://paralelo32cdn.eleco.com.ar/media/2025/06/dos_feriados_nacionales_en_la_semana_venidera_como_funcionaran_los_servicios_en_crespo.jpeg)
Se realizó la apertura de sobres de la Licitación Pública Nº 04/25. El edificio se construirá en un terreno donado por el municipio, con una inversión oficial de más de $329 millones y un plazo de obra de 240 días.
El pasado 30 de mayo se concretó un paso fundamental para el fortalecimiento de la infraestructura judicial en Libertador San Martín. En el edificio del Superior Tribunal de Justicia de Paraná, se llevó a cabo el acto de apertura de sobres correspondiente a la Licitación Pública Nº 04/25, destinada a la construcción del nuevo edificio del Juzgado de Paz de la ciudad.
El proyecto cuenta con un presupuesto oficial de $329.719.183,69 y establece un plazo de ejecución de 240 días corridos. La futura sede se ubicará en calle 25 de Mayo 750, en un terreno donado por el municipio con cargo de uso exclusivo para el Poder Judicial.
Durante el acto licitatorio —al que se presentaron 13 empresas tras la venta de 17 pliegos— estuvieron presentes el presidente del Superior Tribunal de Justicia, Dr. Leonardo Portela; el intendente de Libertador San Martín, Darío Heinze; y el juez de Paz local, Dr. Sergio Colja.
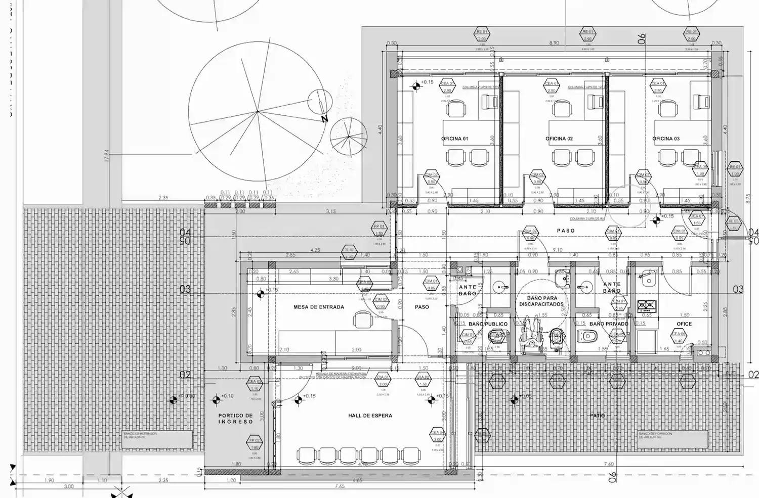
:format(webp):quality(40)/https://paralelo32cdn.eleco.com.ar/media/2025/06/proyecto_del_nuevo_edificio_para_el_juzgado_de_paz_en_libertador_san_martin.png)
"Como comunidad, estamos muy contentos"
En diálogo con Paralelo 32, el intendente Heinze expresó su satisfacción:
“Estuve presente en la licitación para acompañar este momento tan importante. Como intendente y como comunidad, estamos muy contentos de poder tener muy pronto el edificio construido”.
Asimismo, el Dr. Sergio Colja explicó que de las 13 empresas oferentes, 11 pasaron a la instancia de evaluación, que se llevará a cabo durante el mes de junio.
“De estas empresas se seleccionará una para adjudicar la obra. Si todo avanza bien, en julio podría comenzar la construcción y se espera que esté finalizada para fines de mayo de 2026”, detalló el magistrado.
Un edificio cómodo y funcional
Según precisó Colja, el nuevo Juzgado contará con 110 metros cuadrados cubiertos, distribuidos en:
Tres oficinas
Mesa de entrada
Hall de espera
Baños públicos, para discapacitados y para personal
“Vamos a estar muy cómodos, por lo que se ve en el plano en cuanto a dimensiones y distribución”, comentó.
Por su parte, el intendente Heinze subrayó que la obra es muy significativa para la ciudad, que se caracteriza por su perfil universitario y de servicios de salud:
“El Juzgado de Paz ya funciona, pero lo hace en un inmueble alquilado. Esta sede propia es un gran paso, y ojalá pronto podamos sumar otras instituciones públicas”.
Finalmente, Heinze valoró la obra en el marco de una política de seguridad integral para la ciudad:
“Este avance se suma al monitoreo de cámaras y al eficiente trabajo de la Comisaría local. La idea es seguir mejorando cada día para tener una ciudad más segura y tranquila”.

